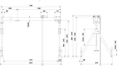
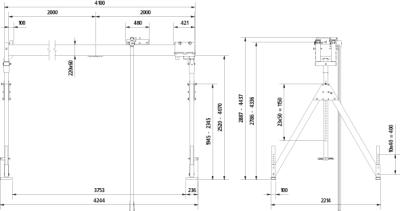
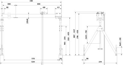
• Robuste Aluminium-Konstruktion, höhenverstellbar
• Bedienungsfreundlich und flexibel
• Kompakte Maße für den leichten Transport, klappbar
• Montage mit praktischer Steckverbindung, ohne Schrauben
• Sicherer Stand auch bei Unebenheiten durch flexible Anpassung der 4 Verstellfüße, Verstellfuß: 400 mm
• Geteilte Einzelträger, 2 t: bis 8000 mm, 3 t: bis 6000 mm
Lieferung: Seitengestelle, Aluminiumträger, feststellbare Laufkatze, integrierter Horizontalversteller.
Hinweis: Zugelassen für die Personensicherung gemäß EN 795:2012.
























